该系列马达是一种带滚动轴承支 撑的轴配流式摆线 液压马达,采用输出 轴与配流机构整体结构设计;采用镶齿式定转子;采用两端滚动轴承支撑;采用专用进口回转动密封圈,使马达允许在较高的背压下工作.
特点:
· 配流机构与输出轴整体结构,具有更高的配油精度,机械效率高
· 先进的轴密封设计,高的背压承受能力
· 镶齿式定转子和先进的花键参数设计机械效率高,寿命长
· 两端双滚动轴承设计,具有更大的侧向承载能力
· 整体输出轴设计,强度更高.
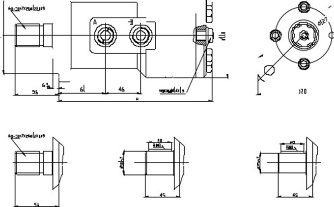
面向输出轴当A口进油, B口回油时,马达顺时针转动。
Add:中国-济宁-国家高新技术产业开发区山博路8号
Tel:400-086-1276
E-Mail:service#wolwa.cn(将#换成@)

官方微信二维码
Copyright Right © 2005 www.wolwa.cn Powered By 沃尔华集团有限公司 鲁ICP备10206551号